Ref
Busco
Tipo
En
Zona
Habitaciones
Baños
Características
Precio

Fabuloso piso a estrenar con gran terraza en Salamanca-Castellana (ref.2645)

Piso en venta en Madrid (Salamanca)

3.300.000 €
ref. 2645
241 m2 construidos
144 m2 útiles
80 m2 terraza
 
 Dormitorios 2
 Baños 3
 Altura/Planta 1

Estado A estrenar
Calificación Energética En trámite

Fantástico piso a estrenar, ubicado en la primera planta de edificio protegido de 1966 de premio Nacional de Arquitectura, con portal señorial y conserje, en el barrio de Salamanca, zona Castellana, en plena Milla de Oro. Un solo vecino por planta.

Destaca por la calidad de la reforma, y por su fantástica terraza – patio privativo de 80m.

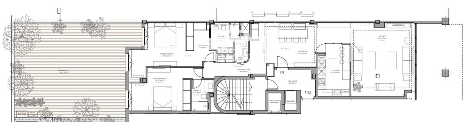
La distribución de la vivienda, de 144m útiles, es la siguiente:

Gran hall, donde se puede ubicar un buen comedor, gran salón exterior con frente de ventanales con orientación este, con cocina semiintegrada (que se podría separar o integrar totalmente si se desea), aseo de invitados, y zona de lavadora-secadora independiente; Dormitorio principal en suite con vestidor, y segunda suite de familia con armarios empotrados. Desde ambos dormitorios, muy luminosos, accedemos a la gran terraza-patio privativo de 80m, con espacio para zona exterior de estar y comedor.

Aerotermia frío y calor, carpintería exterior Cortizo, suelos de roble de gran formato, baños con acabados en pizarra y porcelánicos con acabado mármol de Porcelanosa. Cocina equipada con electrodomésticos Bosch. Comunidad 280€/mes, IBI 2.50€/año.

Pendiente de fotos, plano distribución real.

Si desea más información sobre esta propiedad, por favor, rellene el cuestionario:

LIVINGNET  |  info@livingnet.es  |